Skip to content

RECORDING STUDIO

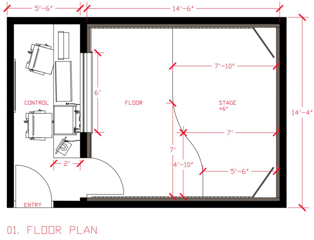
PROJECT TYPE: RECORDING STUDIO/INTERIOR
CLIENT: AHSAN JAMIL ANAS
LOCATION: ZILLA SHILPAKALA ACADEMY, SUNAMGANJ
AREA: 350 SFT
ARCHITECT: SYED TAWSIF MUNAWAR
VISUALIZATION: SYED TAWSIF MUNAWAR

LAYOUT
SECTIONAL ELEVATION